academic
SKK-23SS-TUD-SMS-AIT
Location
AIT ArchitekturSalon Hamburg
Year
2023








In an exhibition at AIT ArchitekturSalon in Hamburg we showed our teaching activities in a multifaceted “SAMMELSURIUM“ - a seemingly random collection of things taken out of their context. Everything within the design process from input to outcome is mixed here: observation and derivation, references, interpretation and narration as well as the various stages of finding and defining in the act of designing. Mixture and quantity allow for a constant change between focused and unconscious perception, creating new links and stimuli.
The exhibition reviewed one year teaching as visiting professors at TU Dresden, showing students’ designs for several sites in Hammerbrook (a part of Hamburg that recently undergoes enormous transformations from a monofunctional office area to a mixed urban quarter) as well as the exercises that accompanied the design course, small model studies and drawings of reference buildings.
For the opening of the exhibition, Jonathan Sergison (Sergison Bates architects) gave an extensive insight into his academic achievements in his lecture “The Practice of Teaching”. In short incentive lectures, Tobias Goevert (head of urban development department Hamburg) gave an overview of the development of Hammerbrook and Katja Pahl (Fritz-Schumacher-Gesellschaft e.V. Hamburg) introduced some models of Fritz Schumacher for the city of Hamburg, linking to the study models on show.
academic
SKK-23SS-TUD-PoS-BKLT
Location
TU Dresden
Year
Summer Semester 2023








Lefebvre does not see space as something absolute, but as a social product. For Lefebvre, the three fundamental aspects, moments and formants of the production of space are the perceived (le percu), the conceived (le concu) and the lived (le vécu), which present themselves in the spatial concepts of spatial practice (pratique spatiale), the representation of space (représentation de l'espace) and spaces of representation (espaces de représentation).
The production of space thus unites three formants that are interrelated:
(1) material production, which produces a spatial practice and thus also the perceptible aspect of space (espace percu);
(2) the production of knowledge, which produces a representation of space and thus a conceptualised space (espace concu);
(3) the production of meaning, which is linked to spaces of representation and which produces an experienced or lived space (espace vécu).
For Lefebvre, the inseparable relationship between space and time is also evident in the simultaneity of these three moments: "Space is simultaneously conceived, perceived and lived "*.
In his "Production de l'espace", Lefebvre seeks a unified theory that brings together the separate fields of physical, mental and social space. His dialectic combines three different concepts that interact with each other: "A social space comprises not only a concrete materiality, but also a mental concept and a sensation, an "experience". Materiality per se, or material practice per se, without the thought that guides and represents it and without the lived, the feelings that are associated with it, have no existence in social terms. Pure thought is pure fiction: it comes from the world, from being, from both material and lived, experienced being. And pure "experience" is pure mysticism: it has no real, that means social existence without the materiality of the body on which it is based and without the thought that structures and expresses it. "*.
see also:
Henri Lefebvre, The Production of Space, Translated by Donald Nicholson Smith, Blackwell Publishing, 1991
Source for summary and quotations*:
Christian Schmid, Stadt, Raum und Gesellschaft. Henri Lefebvre und die Theorie der Produktion des Raums, Franz Steiner Verlag, Stuttgart, 2010
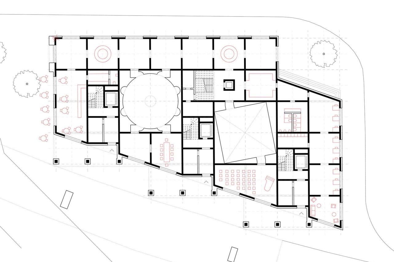
academic
SKK-23SS-TUD-PoS-EDR
Location
Hammerbrook, Hamburg, Germany
Year
2023






1 / 6



1 / 3
1 / 6
1 / 3
academic
SKK-23SS-TUD-PoS-SK+SS
Location
Hammerbrook, Hamburg, Germany
Year
2023




1 / 4




1 / 5
1 / 4
1 / 5
academic
SKK-22WS-TUD-AwR-BKLT
Location
TU Dresden
Year
Winter semester 2022-2023








Just as redundancy in communication takes place in a certain field of reference and changes its justification in another field of reference, redundancy in architecture means for us an investigation of the relationships of the part to the whole in different reference systems. We do not think of redundancy in the general linguistic sense of something superfluous, but rather see architecture with redundancy as an opportunity to reduce definitions in favour of an expansion of possibilities.
In architecture with redundancy, we want to rethink the question of how much needs to be defined. A space that is designed for the fixed scenario of a specific programme adapts poorly to additions or changes. At the same time, function is a rather short-term aspect of a building compared to other components such as the load-bearing structure. In this sense, scenario-defining architecture neither welcomes a future yet unknown, nor does it provide an answer to the changes already taking place in the present.
A space that is not strictly defined, but encourages different uses, allows for different interpretations under different conditions and in this sense is sustainable in a broad spectrum of meanings. Despite the omission of certain parts or definitions, architecture with redundancy harbours the potential for stimuli. Instead of narrow specifications, architecture with redundancy pursues the goal of stimulation.
academic
SKK-22WS-TUD-AwR-MDL
Location
TU Dresden
Year
Winter Semester 2022–2023
















"Every order seems to be somehow absurd and waxwork-like when one takes it too seriously, every single thing a frozen conglomerate of possibilities. But these are not doubts; rather it is an active, elastic indeterminacy that feels capable of anything."
from: Robert Musil, The Man Without Qualities
academic
SKK-22WS-TUD-AwR-VE
Location
Hammerbrook, Hamburg, Germany
Year
2022




1 / 4





1 / 5
1 / 4
1 / 5
academic
SKK-22WS-TUD-AwR-JW+DR
Location
Hammerbrook, Hamburg, Germany
Year
2022




1 / 4





1 / 5
1 / 4
1 / 5
academic
SKK-22WS-TUD-AwR-AF
Location
Hammerbrook, Hamburg, Germany
Year
2022






1 / 6



1 / 3
1 / 6
1 / 3
academic
SKK-22WS-TUD-AwR-KF+MG
Location
Hammerbrook, Hamburg, Germany
Year
2022






1 / 6


1 / 2
1 / 6
1 / 2
academic
SKK-22WS-TUD-AwR-VUEBG
Location
-
Year
2022








“Life has to do with walls; we’re continuously going in and out, back and forth, and through them.
A wall is the quickest, the thinnest, the element we’re always transgressing...”
-John Hejduk, architect
Design two walls.
Consider the following:
Shape | form | structure | order | ratio | proportion | size | materiality | haptics | space
Describe your idea as a totality of these aspects.